AED760,000
Own this from just
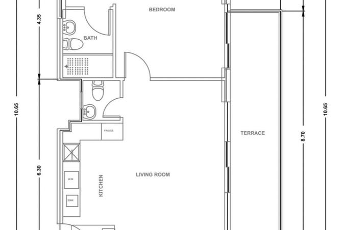
3,126 AED/monthLarge 1 Bedroom | 826 Sq Ft | Equiti Apartments
The unit features a bright living and dining area with excellent natural light, a closed/open kitchen (as applicable) with quality finishes, and a large bedroom with built-in wardrobes. The bathroom is modern and well maintained, and the overall layout provides a comfortable flow suitable for daily living.
Property Features:
1 Bedroom
Size: 826 Sq Ft
Spacious living and dining area
Well-proportioned bedroom with wardrobes
Modern bathroom
Quality finishing throughout
Well-planned layout with minimal wasted space
Building & Community Highlights:
Equiti Apartments – a well-maintained residential building
Dedicated parking
24/7 security
Easy access to main roads
Close to supermarkets, schools, and essential services
Located in Warsan 4, the property offers excellent connectivity while remaining affordable compared to nearby communities, making it a strong option for both residents and investors seeking long-term value.
Contact now for more details or to arrange a viewing.
Property details
Property Type
Apartment
Property Size
826 sqft / 77 sqm
Bedrooms
1
Bathrooms
2
Available from
21 Jan 2026
Amenities
Furnished
Balcony
Central A/C
Covered Parking
Kitchen Appliances
Security
Lobby in Building
Location

Price Insights
This property costs 12% less than the average price of 1 bedroom in Al Warsan
Average Sale Price is 859,155 AED
This property is 2% bigger than the average size of 1 bedroom in Al Warsan
Average size is 809 sqft
The data displayed is based on average prices and sizes of all listings that were live on Property Finder in Al Warsan
Provided by
Response time
within 5 minutes
Experience
3 years
Closed Deals
2
Languages
English, Persian/Farsi
Get the right mortgage for you
Estimate your monthly mortgage payment
Monthly payment
3,126 AED
with interest rate of
3.75%
Regulatory information
Regulatory information
Reference
M6WJHDXGRZ4H9QDNJMK3DHW81W
Listed
2 hours ago
Broker License
22743
Agency name
PROPERTYANA REAL ESTATE L.L.C
Zone name
Warsan Fourth
DLD Permit Number:
71451058068
Agent License
85229
Recommended for you
Own this property from just
3,126 AED /month
Fixed rates from: 3.75%
Get pre-approvedIn partnership with
