Al Mamsha Hamsa
Launch price 919K AED*
*Prices, availability, and purchase conditions may change frequently. Contact a representative for the latest availability and pricing.

Key information
- Delivery date
January 2029
- Sale starts
January 20, 2025
- Location
- Number of buildings
- Property types
Apartment
- Ownership type
Freehold
Project timeline
Project announcement
Booking Started
Construction Started
Expected Completion
Units
from developer
apartment
| Layout type | Size (sqft) | No. of Bathrooms | Floor plan |
|---|---|---|---|
| Unit 17 | 540 | 2 | |
| Unit 04, 06, 09, 11, 13, 15 | 592 | 2 |
| Layout type | Size (sqft) | No. of Bathrooms | Floor plan |
|---|---|---|---|
| Unit 02 | 1,056 | 4 | |
| Unit 03 | 647 | 2 | |
| Unit 08 | 1,174 | 3 |
| Layout type | Size (sqft) | No. of Bathrooms | Floor plan |
|---|---|---|---|
| Unit 04 | 1,557 | 4 |
available in this project.
About the project
Nestled in the heart of Sharjah's Muwaileh district, Al Mamsha Hamsa is a premier residential development by Alef Group, redefining modern urban living. As part of the successful Al Mamsha Raseel community, this new phase offers a seamless blend of contemporary architecture, luxury, and sustainability. Spanning 50,000 square meters, it features three mid-rise buildings with 420 elegantly designed apartments, providing a perfect balance of comfort and convenience.
Prime Location
Strategically situated in the Al Mamsha master community, Al Mamsha Hamsa offers unparalleled connectivity and convenience:
- Minutes from Sharjah University City, a major educational hub.
- Easy access to Dubai via major highways.
- Close to Sharjah International Airport, ensuring seamless travel.
- Near cultural landmarks and mega projects, enhancing lifestyle appeal.
- Well-connected road networks with future public transport links planned.
Amenities
Al Mamsha Hamsa is designed to provide a holistic living experience with world-class amenities:
- Fitness & Wellness: Fully equipped gym, yoga studio, jogging tracks.
- Recreation: Swimming pool, landscaped gardens, children’s play areas.
- Convenience: 24/7 security, concierge services, dedicated parking.
- Retail & Dining: On-site cafes, shopping outlets, and leisure zones.
- Sustainability: Green spaces, energy-efficient systems, and smart home features.
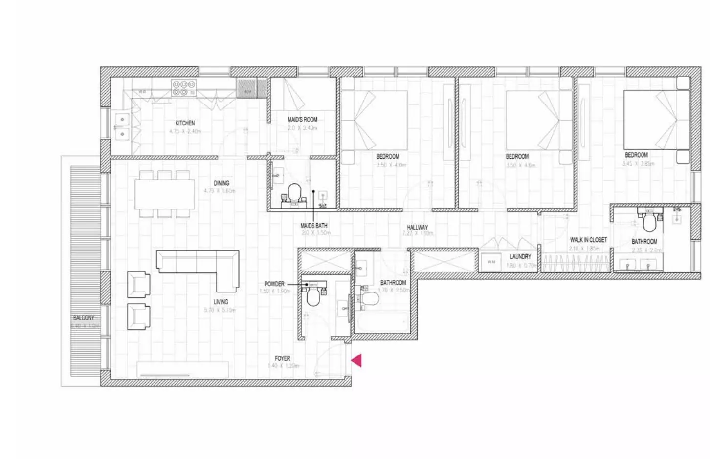
Unit Type
The development offers a variety of spacious and well-designed apartments:
- 1-Bedroom Apartments – Ideal for young professionals and couples, featuring open-plan layouts and private balconies.
- 2-Bedroom Apartments – Perfect for small families, offering master suites, ample storage, and expansive living spaces.
- 3-Bedroom Apartments – Designed for larger families, including en-suite bedrooms, large terraces, and optional maid’s rooms.
Delivery Date
Al Mamsha Hamsa’s delivery date Jan 31, 2029.
Al Mamsha Hamsa embodies Alef Group’s vision of sustainable, luxurious, and community-centric living. Its prime location, cutting-edge amenities, and contemporary designs make it a top choice for homeowners and investors alike. Offering a blend of urban connectivity and tranquil living, it stands as a cornerstone of Sharjah’s future skyline, promising long-term value and an unmatched residential experience.
Al Mamsha Hamsa masterplan

Al Mamsha Hamsa at Al Mamsha Raseel in Sharjah is an elegant residential development by Alef Group, offering a blend of luxury, tranquility, and modern living. Part of the larger Al Mamsha Raseel masterplan, this development features three mid-rise buildings surrounded by lush greenery and vibrant urban amenities. The strategic location of the project ensures easy access to major roadways and key locations such as Sharjah International Airport and Dubai.The residences in Al Mamsha Hamsa are designed to offer comfort and elegance, with spacious interiors, natural light, and high-end finishes.
Key Features
Location:
- 05 Minutes – Sharjah Industrial Area
- 05 Minutes – 06 Mall
- 04 Minutes – University City of Sharjah
- 10 Minutes – Sharjah International Airport
- 15 Minutes – Sharjah Mosque
- 15 Minutes – Dubai International Airport
- 10 Minutes – Dubai National Park
Amenities:
- Gymnasium
- Swimming Pool
- Wellness Center
- Kids Play Area
- BBQ Area
- Walkable Community
- Jogging Track
- Yoga Zones
- Meditation Center
- Lush Greenery
- Play Areas
Location

Amenities
- • Indoor Swimming Pool
- • Landscaped Gardens
- • CCTV Security
- • Gymnasium
- • Restaurants
- • Children's Play Area